Foto’s
Informatie
Te koop sfeervolle tussenwoning met 4 slaapkamers, een berging en een fijne, diepe tuin
ALGEMEEN: Deze woning is op een rustige locatie, in één van de oudste woonwijken “Fatima”, in de gemeente Weert gelegen. De diversiteit in de woonwijk zorgt voor een gezellige mix van culturen en leeftijden. Fatima is een fijne woonwijk waar jong en oud kunnen genieten van een prettige leefomgeving met alle benodigde voorzieningen binnen handbereik. Het centrum van Weert met zijn uitgebreide winkelaanbod, gezellige terrasjes en het NS-intercitystation liggen op enkele minuten afstand van de woning.
De woning is in circa 1940 gebouwd en is door de jaren heen op diverse punten gemoderniseerd (o.a. keuken/ badkamer/ dak). Hierbij zijn enkele, leuke en authentieke details behouden gebleven, die zorgen voor een unieke sfeer.
Maak snel een afspraak voor een bezichtiging om dit zelf te ervaren. Hier voel je je direct thuis!
Indeling:
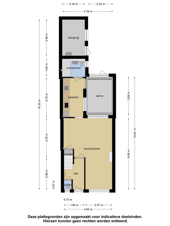
SOUTERRAIN: Bergkelder (5 m2)
BEGANE GROND: - overdekte entree - hal met trap naar 1e verdieping, toiletruimte en meterkast (8 groepen/ 2 aardlekschakelaars) – gezellige woon/-eetkamer (25 m2) met schouwpartij. Vanuit de woonkamer is er toegang tot de keuken, de kelder en heb je via een grote pui contact met de serre. Deze zorgt tevens voor veel lichtinval in de woonkamer. - halfopen keuken (7 m2) met moderne keukeninrichting voorzien van 5-pits gaskookplaat, combi-oven, koelkast, vaatwasser en afzuigkap. Vanuit de keuken is de badkamer en de serre bereikbaar. - geheel licht betegelde, moderne badkamer (3 m2) voorzien van ligbad met douchescherm, hangend toilet en wastafel - heerlijke, lichte serre (9m2). Vanuit de serre heb je een fijn contact met de achtertuin - de gehele begane grond is voorzien van een laminaatvloer met uitzondering van de serre, die voorzien is van een tegelvloer
1E VERDIEPING: - overloop met vaste trap naar 2e verdieping - slaapkamer I (5m2) - slaapkamer II (10 m2) - slaapkamer III (13 m2) - de gehele verdieping is voorzien van een laminaatvloer
2E VERDIEPING: - royale zolderverdieping (17 m2) met 2 dakramen en opstelplaats voor de cv-ketel. Deze verdieping is uitstekend te gebruiken als 4e slaapkamer of hobby-/werkkamer
TUIN: - leuke, aangelegde voor- en achtertuin - de achtertuin, van circa 14 meter diep, is voorzien van een tuin-/fietsenberging (7 m2), diverse terrassen en een achterom - de achtertuin is dusdanig aangelegd dat je hier kan genieten van optimale privacy
TECHNISCHE ASPECTEN: -Bouwaard: traditioneel (spouw) -Vloeren: beton/ holle bouwsteen -Type dak: zadeldak/ plat dak -Dakbedekking: beton dakpan/ bitumineuze dakbedekking -Isolatie: dakisolatie/ dubbel glas (gedeeltelijk) -Kozijnen: hout -Centrale verwarming: ja (m.b.v.cv-ketel/ jaartal circa 2010) -Extra voorzieningen: rolluiken (1e verdieping gedeeltelijk)

































